- 新闻资讯
- 西玛新闻
- 行业资讯
西安西玛电机在食品级输送在西安西玛电机,我们不断致力于技术创新和材料改进,成
浅谈西玛电机近年的变革之品牌与形象的转变,为西安西玛电机带来了市场的广泛认可
深入解析西安泰富西玛电机西玛电机凭借其强大的技术研发能力、卓越的产品质量、完
西安西玛YE5高效电机深西安西玛电机生产的YE5高效三相异步电动机具有性能优
电控学院与西安泰富西玛电电控学院与西安西玛电机有限公司产学研联合工作室的建立
西安西玛电机与西北工业大西安西玛电机有限公司作为一家传统电机生产企业,对领域
泰富西玛电机
配套电柜
电机配件
YKK系列高压三相异步电机西安泰富西玛YKK系列(H355-1000)高压三相异步电机可作驱动
Y2系列紧凑型高压异步电机西安泰富西玛?Y2系列(H355-560)6KV紧凑型高压异步电机可
YE3系列高效节能电机西安泰富西玛电机生产的YE3系列高效节能电机达到了国标二级能效标准,
Z4系列直流电机西安泰富西玛Z4系列直流电动机比Z2、Z3系列具有更大的优越性,它不
Z2系列小型直流电机西安泰富西玛Z2系列电机为一般工业用小型直流电机,其电动机适用于恒功
ZTP型铁路机车动车用直流辅助西安泰富西玛ZTP系列西玛电机应能满足铁路机车动车用直流辅助电机通用
YVFE3高效变频三相异步电动机
产品简介:西安泰富西玛YVFE3系列超高效变频调速三相异步电动机是在YE3系列电机基础上派生的变频电机,其效率达到IE3的超效率标准。在结构方面,其散热片采用平行、垂直分布的形式,结构新颖,外形独特,接线盒……

购买咨询
技术服务
- 产品说明
- 技术参数
- 常见问题
西安泰富西玛电机:YVFE3系列超高效变频调速三相异步电动机
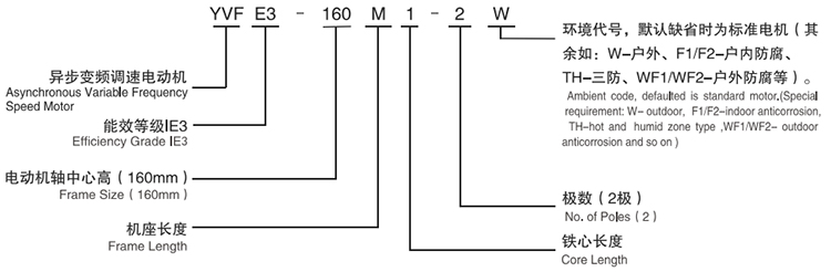
型号说明
以YVFE3-132S2-2为例:YVFE3—电机型号,YVF表示变频调速,E3表示IE3超高高效率;132—中心高;S—机座长度代号;2—铁芯长度代号;2—电机极数。
电机概述
西安泰富西玛YVFE3系列超高效变频调速三相异步电动机是在YE3系列电机基础上派生的变频电机,其效率达到IE3的超效率标准。在结构方面,其散热片采用平行、垂直分布的形式,结构新颖,外形独特,接线盒位于电机顶部,便于用户接线?;?、端盖等零部件设计合理,使整机噪音更低,震动更小,采用轴流通风机强迫通风,保证电机在低速恒转矩长期运行时温升不超过规定值,充分考虑变频器电源供电对电机设计所产生的不良影响,保证电机在高频时的过载能力,又能在低频时保持恒转矩输出。
YVFE3-80-160采用全封闭免维护轴承,YVFE3-180-355前后轴承带注油装置,维护方便。
本系列超高效变频调速三相异步电动机与变频装置构成的调速系统,与其它调速方式相比,节能效果显着,调速性能好,调速范围广,具有噪音低、振动小、可与国内外各种变频器配套的特点,可广泛用于轻功、纺织、化工、冶金、机床等行业的恒转矩,恒功率调速的场合及风机、水泵的节能调速,有助于实现调速系统的自动化控制。
本系列电动机的4极电机符合JB/T7118-2004的规定,其他级数的电机符合IEC34-1的规定,也符合GB755的规定。
电机结构
1、外壳防护等级为IP55,也可按用户要求制成IP55。
2、冷却方式为全封闭带轴流通风机冷却(IC416)。
3、根据用户要求可带各种高分辨率的传感器(光电编吗器、旋转变压器及测速发电机)。
4、根据用户要求可带电磁制动器械(通电、失电制动均可)、齿轮减速机等附件。
5、从轴伸端视之,电机接线盒位于机座右侧,也可按用户要求位于机座左侧或顶部。
电机主要技术性能及技术参数
1、电机为连续工作制。
2、额定电压为380V,额定频率为50HZ。也可根据用户要求确定额定点的电压和频率。
3、绝缘等级为F级。
4、H80-255中心高,5-50HZ为恒转矩调速,H250-355中心高,3-50HZ为恒转矩调速,50-100HZ为恒功率调速。也可根据用户要求确定高频范围。
5、过载能力强。
6、低速性能好。
7、280及以下机座号为Y接法,315 355为△接法。
变频电机使用条件
1、海拔不超过1000m。
2、环境空气温度随季节而变化,但不超过40℃,最低不超过-15℃。
3、最湿月平均相对湿度为90%,同时该月月平均最低温度不高于25℃。
西安泰富西玛变频电机订购须知
1、订货时请注明电动机型号、功率、调速、电压、频率、噪声及安装型式等。若未注明噪声等级,均按2级供货。
2、如有特殊要求,请在合同中注明,并事先与制造厂联系。
以上关于YVFE3系列超高效变频调速三相异步电动机的资料由西安西玛电机技术部提供,网络部整理发布,欢迎广大新老客户垂询选购!
转载请说明来自西安泰富西玛电机(西玛电机集团)官方网站:http://m.qp8l.cn/dianji/dianji_bianpin412.html
型号说明
以YVFE3-132S2-2为例:YVFE3—电机型号,YVF表示变频调速,E3表示IE3超高高效率;132—中心高;S—机座长度代号;2—铁芯长度代号;2—电机极数。
电机概述
西安泰富西玛YVFE3系列超高效变频调速三相异步电动机是在YE3系列电机基础上派生的变频电机,其效率达到IE3的超效率标准。在结构方面,其散热片采用平行、垂直分布的形式,结构新颖,外形独特,接线盒位于电机顶部,便于用户接线?;?、端盖等零部件设计合理,使整机噪音更低,震动更小,采用轴流通风机强迫通风,保证电机在低速恒转矩长期运行时温升不超过规定值,充分考虑变频器电源供电对电机设计所产生的不良影响,保证电机在高频时的过载能力,又能在低频时保持恒转矩输出。
YVFE3-80-160采用全封闭免维护轴承,YVFE3-180-355前后轴承带注油装置,维护方便。
本系列超高效变频调速三相异步电动机与变频装置构成的调速系统,与其它调速方式相比,节能效果显着,调速性能好,调速范围广,具有噪音低、振动小、可与国内外各种变频器配套的特点,可广泛用于轻功、纺织、化工、冶金、机床等行业的恒转矩,恒功率调速的场合及风机、水泵的节能调速,有助于实现调速系统的自动化控制。
本系列电动机的4极电机符合JB/T7118-2004的规定,其他级数的电机符合IEC34-1的规定,也符合GB755的规定。
电机结构
1、外壳防护等级为IP55,也可按用户要求制成IP55。
2、冷却方式为全封闭带轴流通风机冷却(IC416)。
3、根据用户要求可带各种高分辨率的传感器(光电编吗器、旋转变压器及测速发电机)。
4、根据用户要求可带电磁制动器械(通电、失电制动均可)、齿轮减速机等附件。
5、从轴伸端视之,电机接线盒位于机座右侧,也可按用户要求位于机座左侧或顶部。
电机主要技术性能及技术参数
1、电机为连续工作制。
2、额定电压为380V,额定频率为50HZ。也可根据用户要求确定额定点的电压和频率。
3、绝缘等级为F级。
4、H80-255中心高,5-50HZ为恒转矩调速,H250-355中心高,3-50HZ为恒转矩调速,50-100HZ为恒功率调速。也可根据用户要求确定高频范围。
5、过载能力强。
6、低速性能好。
7、280及以下机座号为Y接法,315 355为△接法。
变频电机使用条件
1、海拔不超过1000m。
2、环境空气温度随季节而变化,但不超过40℃,最低不超过-15℃。
3、最湿月平均相对湿度为90%,同时该月月平均最低温度不高于25℃。
西安泰富西玛变频电机订购须知
1、订货时请注明电动机型号、功率、调速、电压、频率、噪声及安装型式等。若未注明噪声等级,均按2级供货。
2、如有特殊要求,请在合同中注明,并事先与制造厂联系。
以上关于YVFE3系列超高效变频调速三相异步电动机的资料由西安西玛电机技术部提供,网络部整理发布,欢迎广大新老客户垂询选购!
转载请说明来自西安泰富西玛电机(西玛电机集团)官方网站:http://m.qp8l.cn/dianji/dianji_bianpin412.html
西安泰富西玛电机(西安西玛电机集团)慎重承诺:西安西玛电机所出售的电机均为正宗泰富西玛牌电机,开17%增值税发票,发票均以快递形式寄出,不随产品运送,以免丢失。用户可凭电机购买合同及西玛电机产品发票,可享受一年期三包售后服务。
西安西玛电机为您提供具有竞争力的电机价格和良好的售后服务政策,请您放心购买!
声明:我厂出售的所有电机产品均开17%增值税发票。如有西玛电机的经销商以不开发票打折优惠、免运费、赠送电机配件、发票用完等理由拒绝向买方提供发票的,请广大新老用户谨慎购买。



西安西玛电机紧跟电机行业的发展趋势,了解电机市场动态,制定出西玛电机的发展规划,稳步前行。
随着国家节能减排的积极推行,新能源汽车产业快速增长及高效节能电机补贴政策的逐步落实,高效节能电机业将迎来爆发式的增长。
西玛电机售后维修业务有:轴料加工件、钢板切割、焊接件、高压机壳、冷却器、上下罩、高、低压交直流电机;国内、外电机的修理、维护和试验。
质量为本,用户至上”是我公司一贯宗旨?!俺闲?、贴心、倾心、西玛永远用心”的“三心”服务理念。
西安泰富西玛电机(西安西玛电机集团股份有限公司)是国内九大的电机供应商之一,产品包括各种高低压、交直流、高压同步电机等。


















